作者:黄丹 专业:环境设计
指导教师:徐啟春
文旅融合时代,民宿经济成区域旅游战略支撑点,突破传统住宿功能,成为文化体验消费重要载体。传统民居是各地劳动人民结合多种因素营造的建筑,本设计利用海南崖州传统民居建筑语汇与老爸茶文化构成独特地域文化符号,为民宿空间创新提供资源。民宿设计因地制宜,降低对原生态系统损害,发挥自然作用并微调重构空间,将崖州民居形制、海南图案融入老爸茶市井场景,实现空间叙事重构,营造文化意象。通过茶席空间与建筑灰空间的对话营造出檐下饮冰的文化意象。
设计采用修旧如旧手法,让传统建筑与现代材料巧妙融合,塑造出兼具历史底蕴与现代功能的新空间。文化是民宿吸引力的核心,为此设计设置老爸茶场地、自主菜园厨房等,让游客体验“家”的温暖,同时最大程度保留建筑原生态,让文化魅力得以充分彰显。

区位分析

周边分析

交通分析

历史文脉

场地现状
创意分析

设计生成过程
首先,利用民居原有的照壁作为空间划分的关键元素,将民宿整体空间精准划分为对外区域和对内区域。这一举措不仅保留了传统民居的特色元素,还为后续的功能布局奠定了清晰的基础。
接着,在空间优化方面,增加了多个功能空间,以满足游客多样化的需求。
在功能流线规划上,我们依据不同区域的功能特性进行了细致划分。对内区域作为住宿的核心区域,主要规划了住宿需求动线。从游客进入民宿办理入住手续,到前往客房休息,再到日常在住宿区域内的活动,整个动线设计流畅、便捷,充分考虑了游客的住宿体验和隐私需求。
对外区域则聚焦于满足游客喝老爸茶的休闲需求,规划了专门的喝老爸茶需求动线。游客可以在这里轻松地找到品茶的场所,享受悠闲的时光,同时该动线与住宿动线相互独立,避免了不同功能区域之间的相互干扰。
此外,考虑到游客的停车需求,还专门规划了停车场动线。从游客驾车进入停车场,到停车后前往民宿入口,整个过程清晰明了,确保了游客能够快速、安全地完成停车并进入民宿。

民宿内增加了亲水景观与游客进行互动,同时景观与景观相互渗透,景观与建筑与室内相互融合。

方案生成



设计图纸

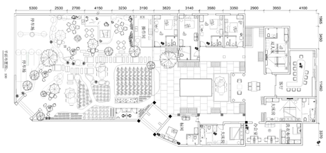
彩平图
方案集中设计了三个功能性空间——客厅、客房、老爸茶区域,空间多采用木色以及暖白色,作为民宿基调。设计将青瓦与现代材质进行配合,既保留传统民居韵味,又满足现代人的审美需求,打造适合现代人的地域文化居住空间。
客厅:宣传了老爸茶文化的由来根据空间构成设计了L造型的茶桌,给予客人与经营者的舒适的沟通距离。



客房:房间内融合了多种海南地域性元素。利用当地手工技艺竹编,设计中采用黎族图腾作为背景,再将黎锦作为地毯。





老爸茶区域:茶客们在这里一边喝着茶,一边吃着小吃,能体验到海南的闲适而富有文化底蕴的氛围。中心饮茶区的亲水景观,让空间更加灵动。利用灌木绿植进行隐隐约约的遮挡。保护客人隐私的同时又增添了一抹神秘。

效果图



效果图
老爸茶操作间:不仅运用了非遗工艺竹编,也体现了老爸茶的文化制作工艺。





